« Mon quartier n’est pas un raccourci » est une réponse des villes européennes et mondiales à ce qu’on peut appeler « l’effet Waze ». Avec les applications GPS, des bouchons ou simples ralentissements sont contournés via de petites rues résidentielles ou commerçantes, n’ayant pas été conçues à cet effet. Un phénomène que l’on retrouve par ailleurs entre les départementales et les petites routes de campagne, traversant les centres-bourg.
« Mon quartier n’est pas un raccourci » vise tout simplement à répondre à ce phénomène existant et vient inscrire la transformation des mobilités et des espaces publics de chaque quartier dans les objectifs globaux:
- Améliorer le bien-être et le cadre de vie
- Conforter et apaiser les coeurs de quartier en se réappropriant les espaces publics
- Réduire les émissions de gaz à effet de serre et la pollution de l’air
- Améliorer la sécurité routière et réduire le bruit urbain
Avoir un flux automobile croissant dans des rues de quartier vient s’opposer aux objectifs mentionnés ci-dessus. Il vient aussi à l’encontre de la vision de la « ville des enfants » où les jeunes peuvent jouer en autonomie dans les rues résidentielles. Avec un flux automobile de transit, c’est-à-dire traversant seulement un quartier, sans rien n’avoir à y faire, la sécurité n’est pas garantie.
C’est pourquoi nous avons décidé à Lyon d’affirmer haut et fort que « mon quartier n’est pas un raccourci »!
Le concept des « superblocks » : une inspiration barcelonaise

Le principe de protection des quartiers résidentiels ou commerçants vient tout droit de Barcelone qui a formalisé son concept de « superblock ». L’urbanisme de la capitale catalane, particulièrement orthogonal, s’y prête à merveille. Dans un îlot de 3×3 bâtiments, certains axes périphériques assument leur fonction de transit automobile et d’itinéraire de transports en commun, alors que les axes à l’intérieur ont vocation à être réservés à de la desserte locale. En bref, ceux qui ont quelque chose à y faire peuvent rentrer, sinon il n’y a aucun intérêt de pénétrer le « superblock ».
L’outil pour y arriver est assez astucieux. Il ne s’agit pas de créer un système complexe de contrôle d’accès, mais simplement de changer le plan de circulation pour créer des boucles pour que la traversée automobile soit peu attractive. Pour les piétons ou cyclistes, pas de contrainte et surtout davantage de sécurité.
D’autres villes européennes ont adopté le concept


D’autres villes ont adopté le concept en l’adaptant à leur urbanisme. C’est le cas des villes belges de Gand et Bruxelles qui ont élargi le concept à des quartiers plus vastes que l’îlot barcelonais. Ainsi, les axes autour de ce quartier élargi servent au transit automobile, alors que les axes intérieurs servent seulement à la desserte et permettent aux piétons et cyclistes d’être plus à l’aise et davantage en sécurité.
Les outils mobilisés sont toujours les mêmes : d’une part, les modifications du plan de circulation, d’autre part, l’usage localisé des « filtres modaux ». Ces derniers constituent des aménagements urbains très légers (barrières, mobilier urbain divers) assurant une continuité pour les seuls modes actifs, et non pour le trafic automobile.
Vers un concept de « super-îlot à la lyonnaise »
Ce que nous avons observé en regardant les exemples européens est un besoin manifeste et évident d’adapter le concept à notre urbanisme local. L’urbanisme lyonnais est assez éloigné de ceux de Barcelone ou de Bruxelles, il a été construit sur deux millénaires avec des différences notables entre les époques. Cela se retrouve dans la fameuse « transition vers l’Est » de l’urbanisation lyonnaise, de la colline de Fourvière à la Part-Dieu, en passant par le Vieux-Lyon et la Presqu’île. La réalité est plus complexe que cela, mais cela illustre bien les pratiques urbanistiques et architecturales différentes selon les époques. C’est d’ailleurs pour cette évolution au fil des siècles que Lyon a été classée au patrimoine mondial de l’UNESCO : une spécificité lyonnaise.
Il s’agit donc de créer une sorte de « super-îlot à la lyonnaise », reprenant les objectifs d’apaisement et de réappropriation des espaces publics, en prenant en compte les particularités lyonnaises.
A date, plusieurs quartiers ont fait l’objet d’une application du concept de super-îlot. Ils sont visibles sur la cartographie ci-dessous. Ces quartiers ont aussi leurs spécificités : usages et urbanisme. Le quartier Danton ou le bas des pentes n’ont ni la même forme, ni le même cadre patrimonial, ni la même densité d’usages.
Aussi, plusieurs projets se font dans le cadre de projets d’aménagement urbain (SPL, ZAC) avec un travail particulier sur les nouveaux espaces publics et leur réappropriation par tous les publics ; d’autres se font à partir de l’existant comme le quartier Danton (3e) avec une dimension mobilités, mais également un accent particulier sur la végétalisation du quartier ; enfin certains constituent simplement des apaisements en matière de circulation.

A la mi-2023, voici la liste des quartiers ayant fait l’objet d’un super-îlot à la lyonnaise:
Bas des pentes : le premier cas de super-îlot avec une boucle Capucins-Leynaud, mobilisant un filtre modal entre la rue des Capucins et la rue Terme, ainsi qu’une piétonisation partielle de la montée Saint-Sébastien (fortement attendue, premier point noir piéton de la ville). Cet apaisement vient en complément de la piétonisation du bas des pentes, effectif à l’automne 2023, au sud de la rue des Capucins.
Quartier Danton : le modèle de super-îlot avec un urbanisme orthogonal dans un quartier résidentiel et dépourvu de végétalisation. Le plan de circulation y est modifié en 2023 et des moyens conséquents sont mobilisés pour végétaliser le quartier, avec des traitements particuliers de la rue des enfants Jacquard et de la place Danton.

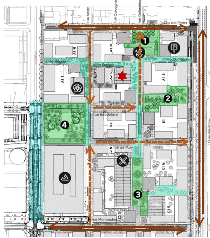
ZAC des Girondins : il s’agit ici d’un grand quartier, encore en cours d’aménagement, avec un profil de voirie non conforme à la loi LAURE (obligation d’aménager des continuités cyclables). L’ensemble du quartier, faisant par ailleurs l’objet d’une forte végétalisation, a vu son plan de circulation être modifié pour éviter les itinéraires de « shunt ».

SPL Confluence – Phase 2 : dans le cadre de la phase, nous avons affirmé l’ambition d’un quartier piéton sans voiture, fortement végétalisé (lire ici plus en détail). Les axes de desserte locale, classés en zones de rencontre, ont été organisés en s’inspirant du concept de super-îlot.

PUP Duvivier : Il n’existe que peu de rues dans ce tout nouveau quartier, mais leur organisation a été travaillé en « boucles » pour notamment aménager une rue des enfants piétonne, aux abord du nouveau groupe scolaire et dans un quartier résidentiel et économique.
Mermoz : à Mermoz, le mail Narvik a été affirmé comme un axe densément végétalisé et apaisé en matière de circulation. Les autres rues du quartier en renouvellement urbain forment un super-îlot réduisant le transit et apaisant la circulation, notamment en lien avec le marché et plusieurs équipements publics.

Duchère : à la Sauvegarde, dans un quartier en renouvellement urbain, les anciennes et nouvelles voiries ont été organisées pour répondre aux objectifs d’apaisement.
Maille Cornier : la « maille Cornier » est un quartier à l’ouest du coeur de quartier de la Croix-Rousse et juste au nord du boulevard. Il est avant tout résidentiel avec une mixité de commerces et des équipements, dont un groupe scolaire. L’idée était d’y réduire le transit, de permettre un cheminement piéton confortable entre l’école et le boulevard et de végétaliser (les rues Jacquard et Cabias en l’occurrence).
Ces projets de « super-îlots à la lyonnaise » viennent en complément des projets de piétonisations des cœurs de quartier. Ces derniers étaient un élément phare de la campagne électoral de 2020 avec une vision de décentraliser les lieux de vie, lieux de rencontre, lieux économiques. C’est en renforçant les cœurs de quartier à Lyon, mais plus généralement les centres-villes des communes de la Métropole, qu’un territoire polycentrique pourra voir le jour. L’aménagement des espaces publics, pour plus de « convillevialité » joue un rôle clé dans ce renforcement.
L’un des projets « cœur de quartier », celui de la presqu’île, s’inspire toutefois largement de la démarche « Mon quartier n’est pas un raccourci ». Cet maxime est évidemment d’autant plus vraie sur le cœur de Lyon avec une densité piétonne inégalée. La solution de la « zone à trafic limité » permet de combiner le besoin d’apaisement pour les piétons, habitants ou visiteurs, ainsi que le besoin de desserte et stationnement local pour les riverains.
Bref, à l’heure de la ville des enfants et d’une forte pression citoyenne pour végétaliser et réduire le trafic automobile, portons collectivement cette vision : mon quartier n’est pas un raccourci.